CHECK ALL BURGERS & COFFEE
Lokalizacja: Szczecin
Kategoria: Obiekty usługowe
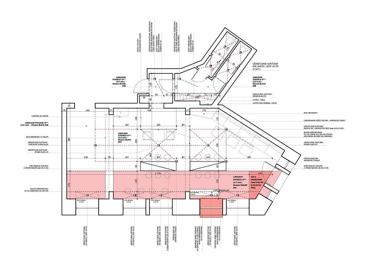
Projekt wnętrza nowej burgerowni na mapie Szczecina powstał z myślą o klientach lubiących wielkomiejski styl życia, dlatego wnętrze nawiązuje swym charakterem do zrodzonego w USA ekspresyjnego i obrazowego stylu pop- art. Przewodnie kolory to czerń i czerwień, która wyznacza strefę komunikacyjną. Poprzez zastosowanie stalowych powierzchni perforowanych uzyskano możliwość otwierania lub dzielenia przestrzeni lokalu w zależności od potrzeb. Całości dopełniają motywy związane z motocyklami, jako nadanie osobistego charakteru temu miejscu przez inwestora, który jest miłośnikiem amerykańskich jednośladów.







