KANCELARIA NOTARIALNA
Lokalizacja: Szczecin
Kategoria: Obiekty usługowe
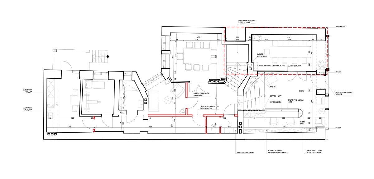
Projekt kancelarii notarialnej w jednej z kamienic XIX wiecznej zabudowy śródmieścia Szczecina łączy klasykę z elegancją. W celu osiągnięcia większej przestrzeni i powierzchni zastosowano przeszklenia oraz rozwiązanie w postaci antresoli. Wszystkie pomieszczenia są wygłuszone. Całości dopełnia reprezentacyjna recepcja, a zastosowane materiały i kolorystyka nadają wnętrzu szlachetności. Projekt budowlany, wraz z aranżacją wnętrz


